1317 Morningside Drive
📍 Plaza Midwood, Charlotte NC
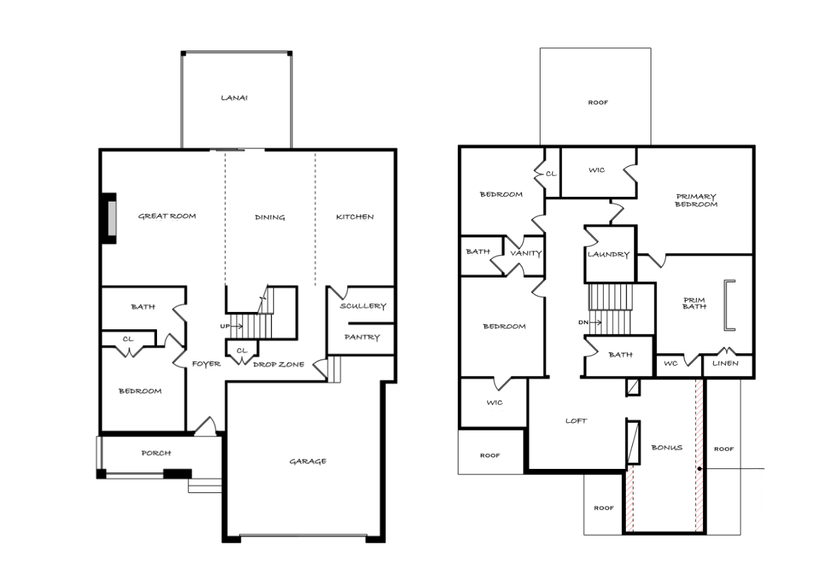
4 Bed + Loft | 4 Bath | 3280 sqft
🏡 Why Plaza Midwood?
Just minutes from Uptown, Plaza Midwood is one of Charlotte's most walkable and eclectic neighborhoods, known for its tree-lined streets, vintage charm, and vibrant creative energy. With local breweries, chef-driven restaurants, and live music venues, it's a community that feels like home from day one. Add in easy access to greenways, parks, and the best of Charlotte's food and arts scene, and you've got the perfect mix of character and convenience.
Got Questions? Want The Grand Tour?
We're real humans, we don't bite & we love talking houses.
Drop us a note below & we'll be in touch faster than fresh paint dries.

